Details
Kingswood Road, Tunbridge Wells
£500,000
Description
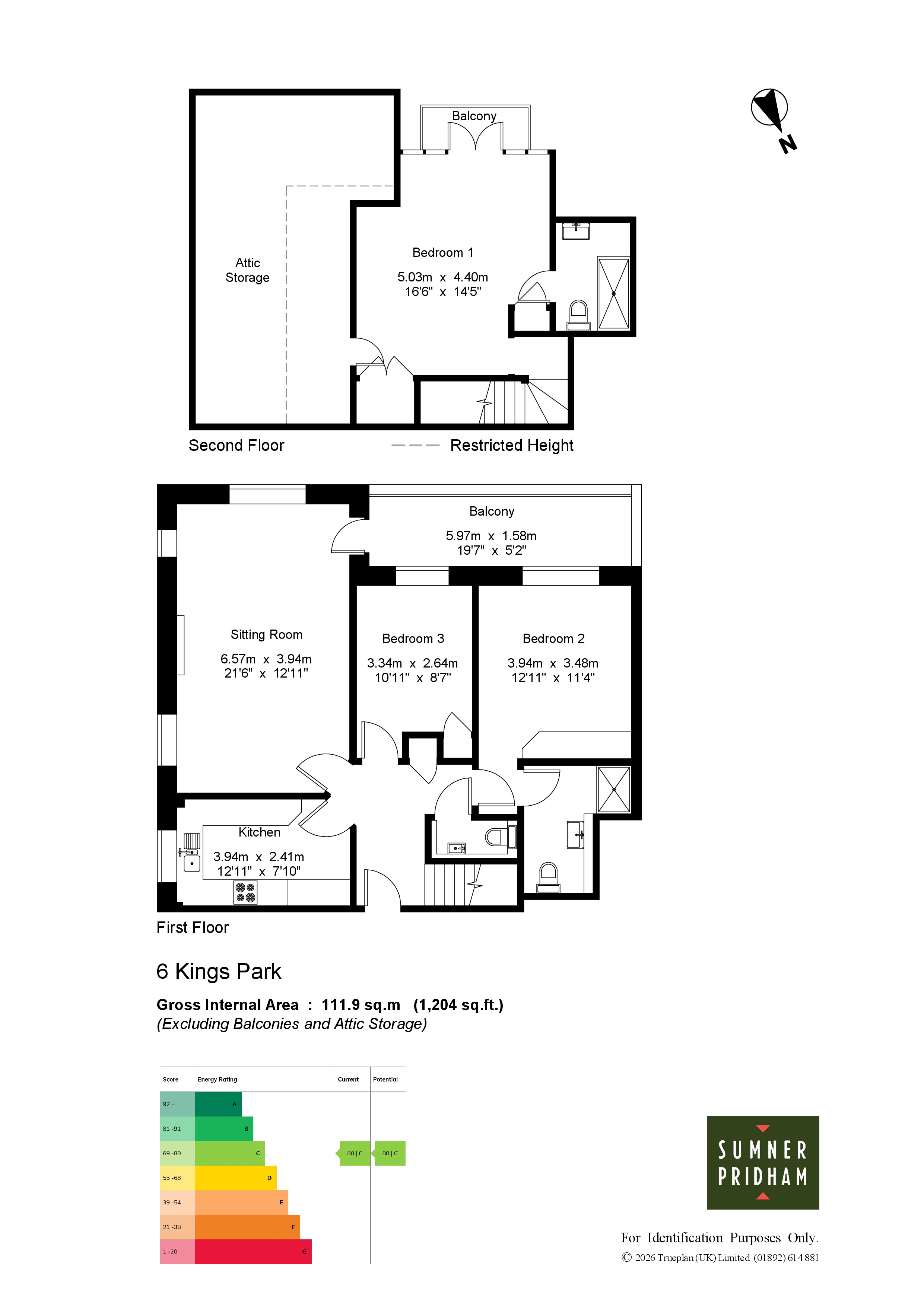
A quiet yet conveniently located 3 bedroom apartment occupying the first and second floors of a small exclusive apartment block close to Dunorlan Park, benefitting from 2 balconies with attractive outlooks, within walking distance of the Victoria Shopping Centre (0.6 miles) and the mainline station (0.9 miles).
The Property
Spacious first and second floor maisonette in an exclusive location.
Ideally suited for those seeking a quiet yet conveniently located property to the town
Surprisingly spacious accommodation arranged over 2 floors.
Staircase and lift to first floor.
Hall with panelled doors to all rooms, coved ceiling, cloakroom with low level WC and concealed cistern, washbasin, chrome towel rail, tiled walls and floor.
Triple aspect sitting/dining room including a door out to a balcony, a light room enjoying east, south, and westerly orientation, fireplace with marble inset and hearth, coved ceiling, pair of centre ceiling roses.
Kitchen recently installed with quartz worksurfaces arranged over 3 walls incorporating one and a half ceramic sink, below window, tiled splashback, induction hob (not sure if working), Siemens electric fan assisted oven and grill, fridge/freezer, excellent range of cupboards including pull out corner trays, nest of drawers including saucepan drawer, washing machine, Siemens dishwasher, matching wall mounted cupboards and illuminated display cabinets, chrome towel rail.
Matching cupboard housing British Gas fired boiler providing central heating and domestic hot water.
Bedroom 2 with triple set of windows overlooking the balcony and enjoying a southerly aspect, fitted wardrobe cupboards, ensuite shower room with walk in shower, wide washbasin with drawers beneath, low level WC, tiled walls and floor.
Bedroom 3 also enjoying a southerly aspect overlooking the balcony, built in wardrobe cupboards.
Stairs from the hall to the second floor.
Bedroom 1 with a pair of French doors out to a balcony with far reaching views and a southerly aspect.
Built in linen cupboard, deep wardrobe cupboard with mirrored doors.
Ensuite shower room with separate walk in cubicle wash basin with drawers beneath, low level WC, and chrome towel rail.
Walk in attic with boarding shelving also housing hot water tank, power and light connected.
Outside
Allocated underground parking space for a small car which can also be accessed via an internal stairs.
To the rear of the property there is also additional external parking arranged on a first come first served basis.
Practicalities
Share of Freehold with a 999 year lease from September 2009.
Service charge is £783 per quarter.
Managing Agents are TW Block Management.
Viewing
Strictly by appointment only through sole agents Sumner Pridham
01892 516615 info@sumnerpridham.co.uk
Viewing
Please contact us on 01892 516615 if you wish to arrange a viewing appointment for this property, or require further information.
Energy Performance Certificate
Click here to view the Energy Efficiency Rating and Environmental Impact Rating for this property.
Disclaimer
Sumner Pridham endeavour to maintain accurate depictions of properties in Virtual Tours, Floor Plans and descriptions, however, these are intended only as a guide and purchasers must satisfy themselves by personal inspection.
A quiet yet conveniently located 3 bedroom apartment occupying the first and second floors of a small exclusive apartment block close to Dunorlan Park, benefitting from 2 balconies with attractive outlooks, within walking distance of the Victoria Shopping Centre (0.6 miles) and the mainline station (0.9 miles).
The Property
Spacious first and second floor maisonette in an exclusive location.
Ideally suited for those seeking a quiet yet conveniently located property to the town
Surprisingly spacious accommodation arranged over 2 floors.
Staircase and lift to first floor.
Hall with panelled doors to all rooms, coved ceiling, cloakroom with low level WC and concealed cistern, washbasin, chrome towel rail, tiled walls and floor.
Triple aspect sitting/dining room including a door out to a balcony, a light room enjoying east, south, and westerly orientation, fireplace with marble inset and hearth, coved ceiling, pair of centre ceiling roses.
Kitchen recently installed with quartz worksurfaces arranged over 3 walls incorporating one and a half ceramic sink, below window, tiled splashback, induction hob (not sure if working), Siemens electric fan assisted oven and grill, fridge/freezer, excellent range of cupboards including pull out corner trays, nest of drawers including saucepan drawer, washing machine, Siemens dishwasher, matching wall mounted cupboards and illuminated display cabinets, chrome towel rail.
Matching cupboard housing British Gas fired boiler providing central heating and domestic hot water.
Bedroom 2 with triple set of windows overlooking the balcony and enjoying a southerly aspect, fitted wardrobe cupboards, ensuite shower room with walk in shower, wide washbasin with drawers beneath, low level WC, tiled walls and floor.
Bedroom 3 also enjoying a southerly aspect overlooking the balcony, built in wardrobe cupboards.
Stairs from the hall to the second floor.
Bedroom 1 with a pair of French doors out to a balcony with far reaching views and a southerly aspect.
Built in linen cupboard, deep wardrobe cupboard with mirrored doors.
Ensuite shower room with separate walk in cubicle wash basin with drawers beneath, low level WC, and chrome towel rail.
Walk in attic with boarding shelving also housing hot water tank, power and light connected.
Outside
Allocated underground parking space for a small car which can also be accessed via an internal stairs.
To the rear of the property there is also additional external parking arranged on a first come first served basis.
Practicalities
Share of Freehold with a 999 year lease from September 2009.
Service charge is £783 per quarter.
Managing Agents are TW Block Management.
Viewing
Strictly by appointment only through sole agents Sumner Pridham
01892 516615 info@sumnerpridham.co.uk
Viewing
Please contact us on 01892 516615 if you wish to arrange a viewing appointment for this property, or require further information.
Energy Performance Certificate
Click here to view the Energy Efficiency Rating and Environmental Impact Rating for this property.
Disclaimer
Sumner Pridham endeavour to maintain accurate depictions of properties in Virtual Tours, Floor Plans and descriptions, however, these are intended only as a guide and purchasers must satisfy themselves by personal inspection.
Features
- Conveniently located maisonette, small exclusive apartment block benefitting from no forward chain.
- Within walking distance of the town centre and just under a mile from the mainline station.
- Spacious accommodation arranged over 2 floors with allocated underground parking.
- Triple aspect sitting dining room with access out to balcony with space for bistro table and chairs.
- Recently installed kitchen, excellent range of cupboards, drawers and illuminated display cabinet.
- Appliances include fan assited oven and grill, fridge/freezer, dishwasher and washing machine.
- Principal bedroom suite with french doors out to second balcony plus ensuite shower room.
- Two further bedrooms both with built in wardrobe cupboards, one with ensuite shower room.
- Walk in boarded attic space with shelving, housing hot water tank, power and light connected.
- Allocated underground parking plus external parking on first come first served basis.
Share
Request aValuation
Thinking of selling your home? Request a free, no obligation market appraisal from Sumner Pridham

